Câmara de Conde passará por reforma e ampliação
Desde que foi inaugurado em 2006, o prédio da Câmara Municipal de Conde nunca passou por qualquer tipo de melhoramento em sua estrutura. Sabedor da necessidade de reformar e ampliar a Casa Legislativa, o presidente Carlos Manga Rosa anunciou que já abriu processo licitatório com vistas a realização de obras que em breve serão iniciadas na Casa Cícero Leite.
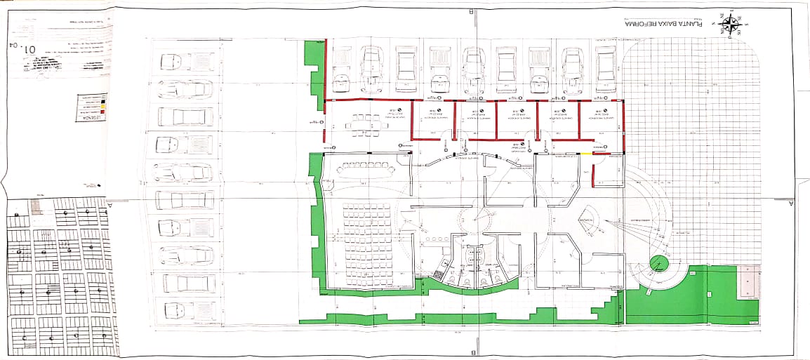
Atualmente a Câmara conta com 11 vereadores, porém apenas 10 têm gabinetes. Além disso, não existe sala para a tesouraria e para o arquivo. Com a ampliação, serão construídas seis novas salas, sendo uma delas para a presidência, quatro novos gabinetes, um local específico para arquivo legislativo e um amplo espaço de reunião. Ao todo, serão 120 metros de área construída.
“Em alguns anos certamente o número de vereadores aumentará e a ideia é já deixar o prédio pronto para esse momento. A reforma ainda nos possibilitará destinar uma sala para a tesouraria, que funcionará onde hoje é a presidência, além disso teremos uma sala para o arquivo da Casa”, declarou Manga Rosa.
Manga Rosa enfatizou que a reforma e ampliação acontece como resultado de uma postura austera, que permitiu que a Casa economizasse recursos e mantivesse em caixa o recurso para realização das obras. “Atuamos de modo austero, buscando garantir que pudéssemos realizar as obras que darão condição de que os vereadores possam trabalhar com maior tranquilidade”.
O vereador ainda informou que há o desejo de no próximo ano tentar realizar a ampliação do Plenário da Casa. “Nosso desejo é conseguir aumentar o plenário no próximo e com isso, oferecer maior conforto a população que prestigia as sessões da Câmara”, concluiu.




